

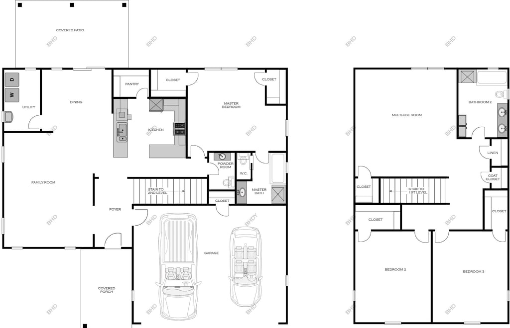
PROJECT 07
2000 Sq Ft | 3 Bed | 2.5 Bath | 2 Levels | Bonus room
Efficient two-story family home, large multi-use room upstairs, ample storage & covered patio. Multiple roof designs available & configurable exterior finishes.





The home design tiles are visually stunning and provide all the details I need!
Sarah J.
I love how easy it is to find homes with the right specifications at a glance.
Mark T.
★★★★★
★★★★★
Get in Touch
Contact us for inquiries about our home design tiles and specifications on square footage, bedrooms, bathrooms, and floors.
Connect
1234567890
Support
info@home-designs.com
